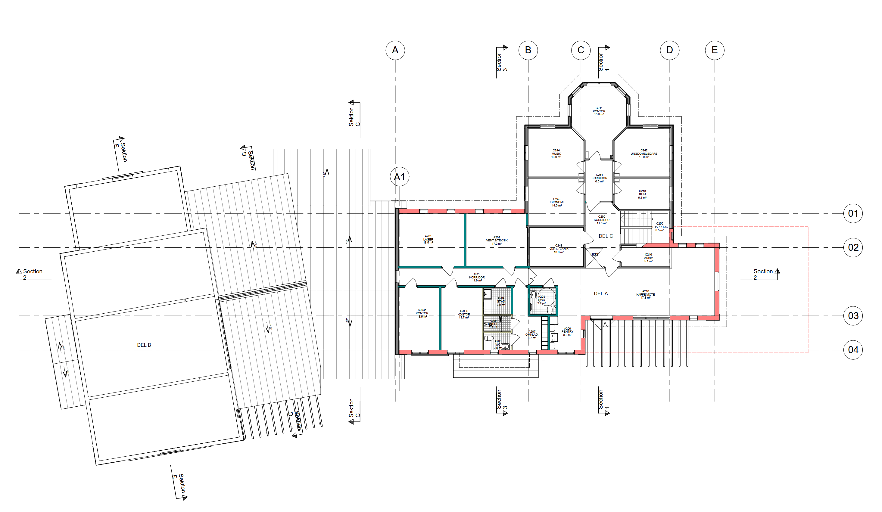
Ritningar för Olofsgården godkändes

Nu har kyrkofullmäktige i Jomala godkänt ritningarna som tagits fram gällande församlingshemmet Olofsgården. Delar av Olofsgården är fuktskadade och tanken är att de ska rivas och ersättas.
Församlingssalen och delar av det gamla pastorskansliet som byggdes 2005–2008 bevaras då de inte är fuktangripna. Sedan uppförs en ny byggnadsdel i två våningar som fogar samman de gamla delarna. I den nya delen ska det finnas kök, ny reception, nya samlingsutrymmen, förråd och tekniska utrymmen. I församlingens budget för 2026 har man vikt två miljoner euro åt rivning och byggnadsarbeten.
Författare
|