Medborgarna får tycka till om fågelhuset på Lilla holmen

En medborgarundersökning ska göras om vad insidan av fågelhuset på Lilla holmen bör användas till i framtiden.
Det beslöt stadsmiljönämnden på sitt senaste möte.
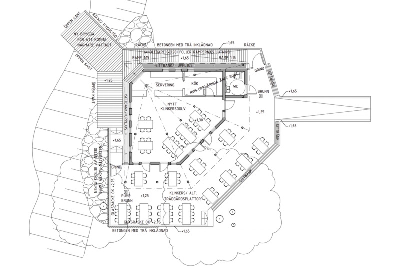
Inför mötet hade en arkitektfirma tagit fram ritningar på hur fågelhuset skulle kunna se ut om man använder det som kafé i framtiden. Men på mötet föreslog ledamoten Emil Sandström att man ska låta medborgarna komma med åsikter innan man bestämmer vad fågelhuset ska användas till, och hans förslag understöddes enhälligt.
Nämnden beslöt också att man ska bygga en ny brygga och en ny mur utanför fågelhuset för att skydda byggnaden.
Författare
|