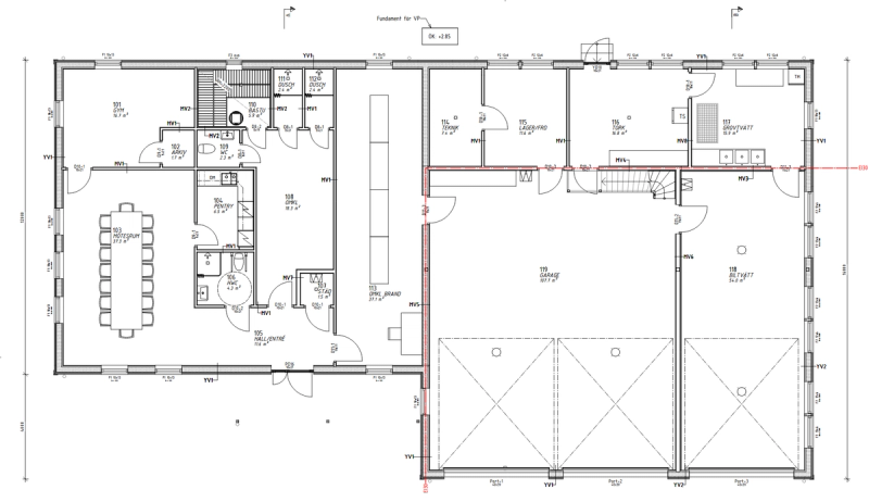
Jomalapolitiker kräver separata omklädningsrum i ny brandstation

Det bör finnas omklädningsrum och duschar både för kvinnor och män i Gottby FBK:s nya brandstation.
Det anser kommunfullmäktige i Jomala som på sitt senaste möte återremitterade ritningarna så att de kan omarbetas.
På de ursprungliga ritningarna fanns bara ett omklädningsrum, fullmäktige anser att det måste finnas olika för kvinnor och män.

Man tycker också att den nya branddepån ska placeras längre åt nordost så att maskinhallen kan byggas ut vid behov.
Den korrigerade skissritningen ska godkännas av kommunstyrelsen.
Författare
|